Kestrich (Hessen)

Kestrich ist heute ein Ortsteil von Feldatal (Vogelsbergkreis) mit kaum 300 Einwohnern - ca. 15 Kilometer südwestlich von Alsfeld bzw. knapp 40 Kilometer südöstlich von Marburg gelegen (Ausschnitt aus hist. Karte 'Oberhessen' ohne Eintrag von Kestrich, aus: wikipedia.org, gemeinfrei und Kartenskizze 'Vogelsbergkreis', Andreas Trepte 2006, aus: commons.wikimedia.org, CC BY-SA 2.5).
Unter der Schutzherrschaft des Freiherrn von Schenck zu Schweinsberg waren seit Mitte des 18.Jahrhunderts Juden im oberhessischen Dorfe Kestrich dauerhaft ansässig; vermutlich haben sich aber schon jüdische Familien in der Zeit des Dreißigjährigen Krieges hier aufgehalten.
Um 1800 erreichte die Zahl der Gemeindeangehörigen mit ca. 30 Familien ihren Höchststand; bis gegen Mitte des 19.Jahrhunderts stellten die Dorfbewohner mosaischen Glaubens etwa ein Viertel der Gesamteinwohnerschaft..
Der um 1850 eingerichtete Betsaal - in einem ehemaligen Stall-/Scheunengebäude untergebracht - bot 41 Männern und 17 Frauen Platz; etwa 30 Jahre später wurde die Synagoge einer Renovierung unterzogen.
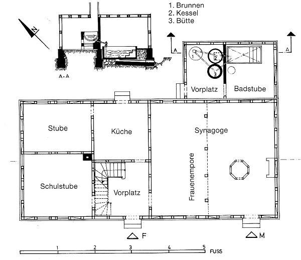
Grundriss des Gebäudes (aus: Th. Altaras)
Mit der Verrichtung religiös-ritueller Aufgaben war ein seitens der Gemeinde angestellter Lehrer betraut.
Anzeige in der Zeitschrift "Der Israelit" vom 8.12.1884 
Eine in Kestrich beheimatete jüdische Schule („Jirreschul“) bestand bis kurz vor 1900.
Zu den gemeindlichen Einrichtungen gehörte auch ein eigener Friedhof, der in der Zeit der ersten Ansiedlungen angelegt worden sein muss; er lag weit außerhalb der Ortschaft an einem heute bewaldeten Berghang.
Zur orthodoxen Kestricher Gemeinde, die dem Provinzialrabbinat Oberhessen mit Sitz in Gießen unterstand, gehörten auch die wenigen Juden aus Groß-Felda.
Juden in Kestrich:
--- um 1800 .................... ca. 30 jüdische Familien,* *andere Angabe: 14 Familien
--- 1830 ........................... 73 Juden (ca. 15% d. Bevölk.),
--- um 1860 .................... ca. 100 “ (ca. 25% d. Bevölk.),
--- 1880 ........................... 52 “ (ca. 14% d. Bevölk.),
--- 1895 ........................... 39 “ ,
--- 1905 ........................... 34 “ ,
--- 1910 ........................... 32 “ (ca. 11% d. Bevölk.),
--- 1933 (Sept.) ................... 19 “ (in 5 Familien),
--- 1938 ........................... 16 “ ,
--- 1939 ........................... 3 “ ,
--- 1942 (Dez.) .................... keine.
Angaben aus: Paul Arnsberg, Jüdische Gemeinden in Hessen. Anfang - Untergang - Neubeginn, Bd. 1, S. 441
Zu Beginn der 1930er Jahre lebten nur noch fünf jüdische Familien im Dorf; drei bestritten ihren Lebenserwerb vom Vieh-, zwei vom Gemischtwarenhandel.
Wenige Jahre nach der NS-Machtübernahme wanderten die meisten aus; 1936 löste sichdie Gemeinde auf. Während des Novemberpogroms von 1938 wurde die Inneneinrichtung des Betraums demoliert. Die letzten drei jüdischen Bewohner Kestrichs wurden im Frühherbst 1942 nach Theresienstadt deportiert.
Nach Angaben der Gedenkstätte Yad Vashem/Jerusalem und des "Gedenkbuches - Opfer der Verfolgung der Juden ..." sollen 14 gebürtige Kestricher Juden Opfer der Shoa geworden sein; anderen Angaben zufolge sollen es 21 Personen gewesen sein, die deportiert und ermordet wurden (namentliche Nennung der betroffenen Personen siehe: alemannia-judaica.de/kestrich_synagoge.htm).
Der von einer Steinmauer umgrenzte, stark überwucherte Friedhof mit seinen noch ca. 60 sichtbaren Grabsteinen erinnert als einziges Originalrelikt an die ehemalige jüdische Gemeinde Kestrichs.
Jüdischer Friedhof Kestrich (Aufn. U., 2014, in: wikipedia.org, CC BY-SA 3.0)
Zwei ältere Grabsteine (Aufn. H. Nuhn, 2005) 
Ehem. Synagoge (Aufn. juedisches-museum-vogelsberg.de, 2003)
Dank finanzieller Unterstützung diverser Organisationen wurde das Synagogengebäude Feldatal-Kestrich restauriert und im Juli 2005 als Kultur- und Gedenkstätte der Öffentlichkeit übergeben. Inzwischen stand eine neue Sanierung an (2021); das hessische Landesamt für Denkmalpflege stellte dazu einen finanziellen Beitrag zur Verfügung.
Eine steinerne Stele (Aufn. Jüdisches Museum Vogelsberg) trägt - unter einem Davidstern - die folgende Inschrift:
Die eigene Freiheit bewahrt, wer die Freiheiten des Anderen achtet und schützt.
Zum Gedenken an die Leiden und den Tod unserer ehemaligen jüdischen Mitbürger während der Zeit des Nationalsozialismus.
Gemeinde Feldatal
Ehemalige Synagoge
1839 von Abraham Bacharach und Ehefrau Delz (Delsa) geb. Lewi erbaut und der jüdischen Gemeinde vermacht, 1870 renoviert. Der Betraum hatte 41 Männer- und 17 Frauenplätze. Im Jahr 2005 teilweise rekonstruiert und als Gedenkstätte umgebaut
Mehrere Ausstellungstafeln am sog. „Judenpfad“, auf dem im 18./19.Jahrhundert jüdische Klein- u. Viehhändler und Hausierer unterwegs waren, sollen an das mühevolle Leben der Landjuden dieser Zeit erinnern.
Anm.: Der Wanderweg „Judenpfad“ soll die alten Handelswege der Vogelsberger Juden wiederbeleben und Orte miteinander verbinden, in denen einst jüdische Gemeinden existierten. Auf Initiative des 1999 gegründeten „Fördervereins zur Geschichte des Judentums im Vogelsberg“ soll der Wanderweg auf ca. 50 Kilometer Länge die Verbindung von Gedenk- und Dokumentationsstätten im Vogelsbergkreis fördern und mit ca. 50 Tafeln als ein „dezentrales Museum“ die jüdische Geschichte der ländlichen Region vermitteln. Im Frühjahr 2012 wurde die erste Etappe des „Judenpfades“ eingeweiht.
Weitere Informationen:
Paul Arnsberg, Die jüdischen Gemeinden in Hessen. Anfang - Untergang - Neubeginn, Societäts-Verlag, Frankfurt/M. 1971, Bd. 1, S. 441/442
Thea Altaras, Synagogen in Hessen - was geschah seit 1945 ?, Königstein i.T. 1988
A. Wiesemüller/M. Krauss, Jüdische Friedhöfe im Vogelsbergkreis, in: Kulturverein Lauterbach e.V. (Hrg.), Fragmente ... jüdischen Lebens im Vogelsberg, Lauterbach 1994, S. 82
www.judaica-vogelsberg.de/friedhoefe
Kestrich mit Groß-Felda, in: alemannia-judaica.de (mit Dokumenten zur jüdischen Ortshistorie)
Ernst-Uwe Offhaus, Geschichte der Juden in Kestrich, Selbstverlag, Fuldatal 2005
Historisches Feldatal e.V. (Hrg.), Alte Synagoge Kestrich, online abrufbar unter: historisches-feldatal-e-v.de/seite/105254/geschichte_der_juden.html
Katharina Jacob, Kestrich: Brave Händler, (mehrseitiger Aufsatz mit Biografien der jüdischen Familien; als PDF-Datei online abrufbar unter: Kestrich, alemannia-judaica.de)
Jüdischer Friedhof Kestrich, in: Judenpfad – Ein Wanderweg mit Schautafeln zur jüdischen Geschichte und zu Besonderheiten des Vogelsbergs (online abrufbar)
Förderverein zur Geschichte des Judentums im Vogelsberg e.V. (Bearb.), Gemeinde Kestrich (Feldatal), online abrufbar unter: juedische-geschichte-vogelsberg.de
pm (Red.), Feldatal. Erinnerung an das jüdische Leben – 12.000 Euro für Sanierung der Alten Synagoge in Kestrich, in: „Osthessen News“ vom 24.3.2021
gkr (Red.), „Zeichen gegen Antisemitismus“: Alte Synagoge in Kestrich wird saniert, in: „Oberhessische Zeitung“ vom 21.7.2021
N.N. (Red.), Synagoge Kestrich: Geschichte, die lebendig bleibt, in: „Oberhessische Zeitung“ vom 9.11.2021